A Deck Design is the Foundation of a Successful Project

Before we build a deck, we create a comprehensive design. And we go beyond simple concept drawings — we deliver clients a full design package. Our models generate working plans, materials estimate and permit plans – should they be required. 

We stay within our abilities and understand that we specialize in building. At times we use a 3rd party company to create the overall concept.

What’s Included in Our Deck Design Packages

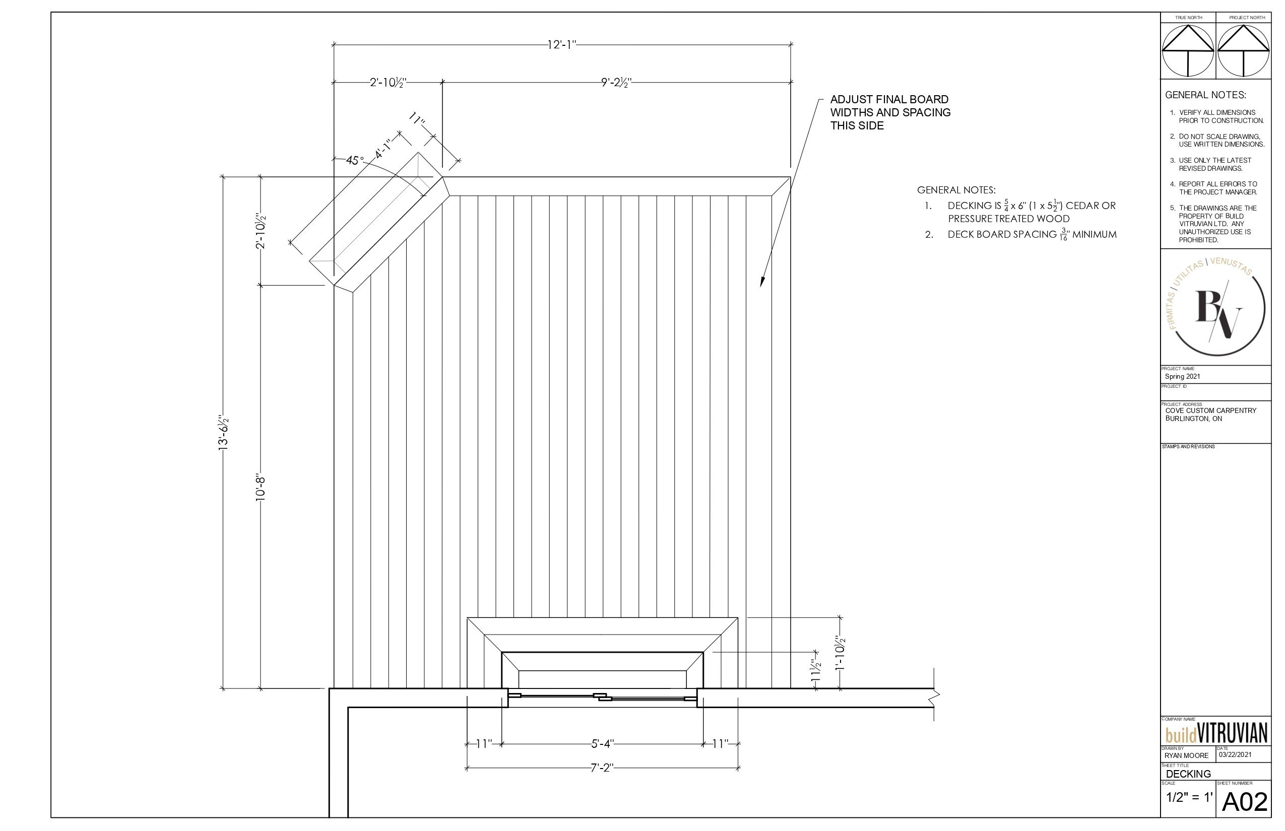
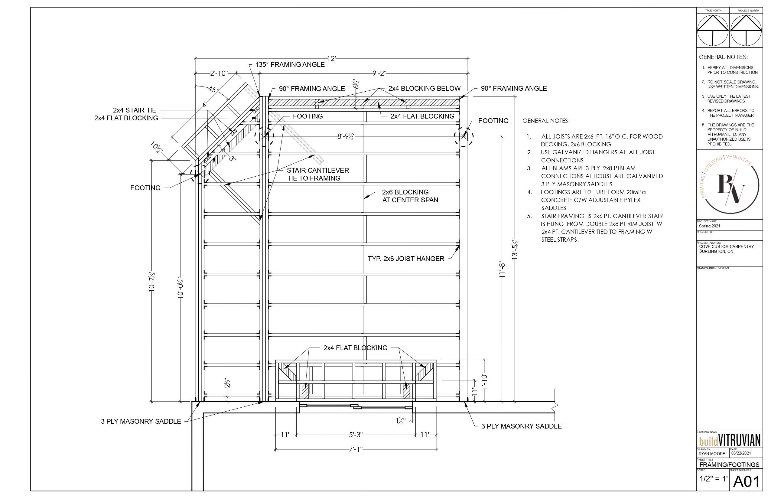
  • 2D Plans

    Plans show how every square inch of a space is used and can help visualize the flow. Mapping out the space to scale can help prevent construction oversights and help forsee any potential challenges.

  • Renders

    3D renders can be indistinguishable from photographs. These plans allow clients to actually see how their design choices will look and make adjustments before building begins.

  • 3D Interactive Models

    View your project from all angles with an online interactive model. We model your home and backyard to give you a faithful representation of what the final design will actually look like once it’s built. 

    Deck Design Add-Ons

  • Construction Plans

    A set of detailed building plans (structural, framing, decking & railing).

  • Materials List

    A complete material takeoff needed for the deck design. 

  • BCIN Plans

    Stamped plans that can be submitted for permits.

  • They provided us with renderings of a few different options, and then modified the one we chose until we had exactly the design we wanted. The software used to provide the renderings was phenomenal; it was like seeing the deck already built and in place in our yard.

    Ready to Design Your Deck?

    FAQ

     

    How much does a deck design cost?

    Our design packages start at $1,500 and increase in price based on design complexity, and design and plan requirements.  

    Will you build a deck without a design package?

    No. We don’t use the same design for every build — every deck is custom designed to fit the needs of that specific client. So we have to go through the design process to make sure our clients are getting exactly what they need (and want) from their deck.

    Will you just design (not build) our deck?

    Yes! If you are building your own deck or working with another contractor, we’d be happy to provide the designs. We can tailor a package to include conceptual designs, working plans, material takeoff, permit plans and more.

    How does the design process work?

    If you’re interested in working with us, tell us about your project using the contact form. We’ll get back to you and schedule a time to meet and discuss your project in more detail.

    After this complimentary meeting, we’ll provide you with a deck design quote and outline the next steps.